
Interior Design
Private Residential Holiday House
Our Interior Design Process
We want to share with you how we address an interior design project presenting you the main steps:
1. Moodboard & Survey
Firstly, after meeting and speaking to our clients, we compose a Mood board in order to start a vision based on the meeting feedback. We measure the space, create a plan solution and propose a mood for the spaces using relevant suggestive images, colours and textures.

2. 3D Concept
Based on the information gathered, we start tailoring the aesthetic of the space with the help of 3D visualizations. We utilise 3D visualisations as a tool in the design process, not a destination. Flexibility is required as the project may meet variations during the implementation process. The beneficiaries wished for a luminous open space, with wood elements, a touch of classic in the form of milled doors and custom décor from the Romanian Brancovenesc style.
Living Room



Master Bedroom & Bathroom



Daughter's Bedroom & Grandmother's Bedroom




Common Bathroom


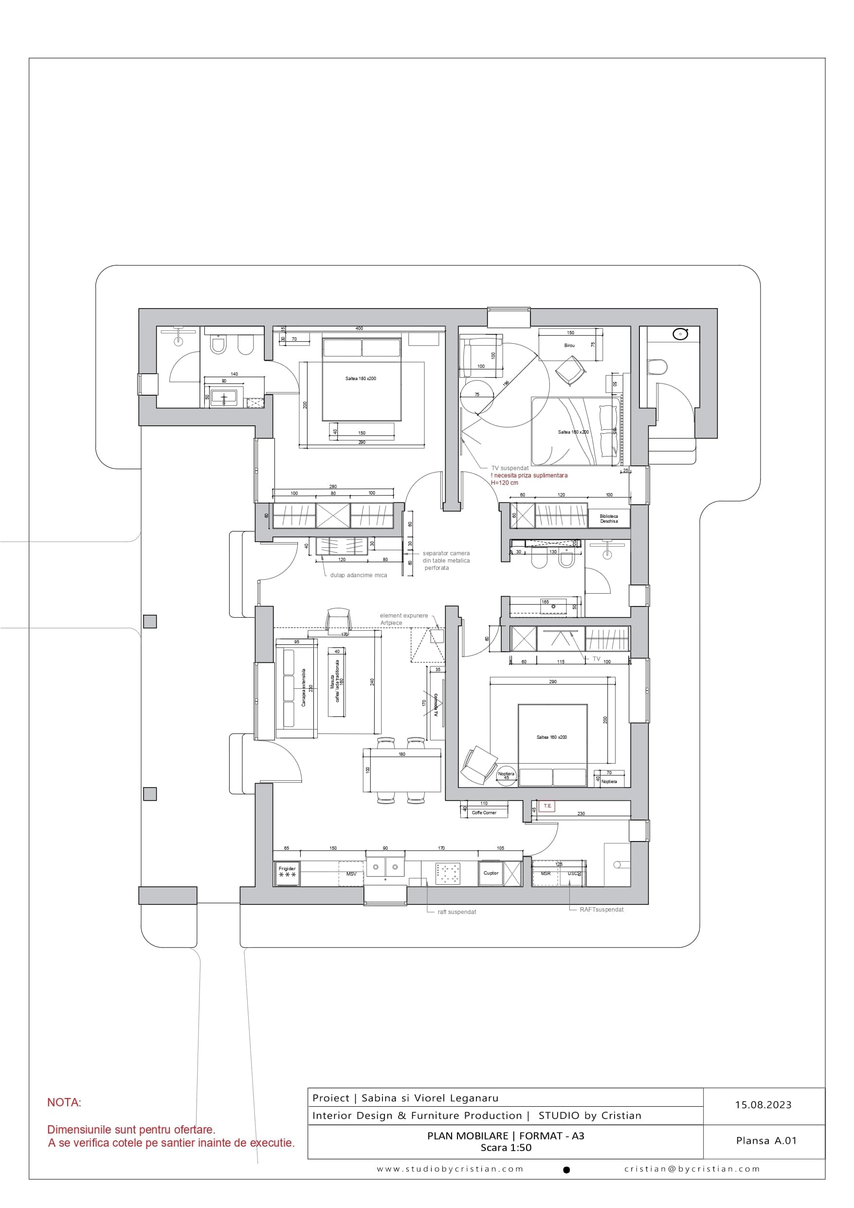
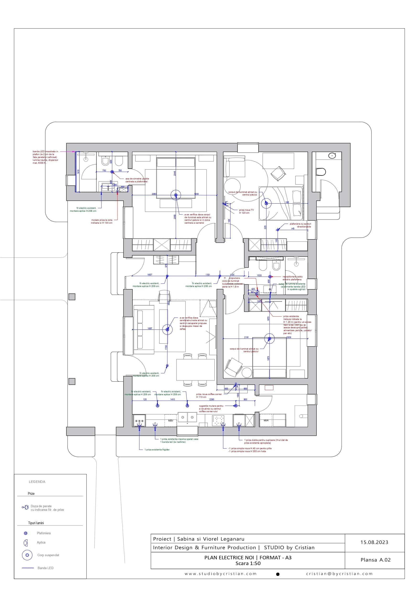
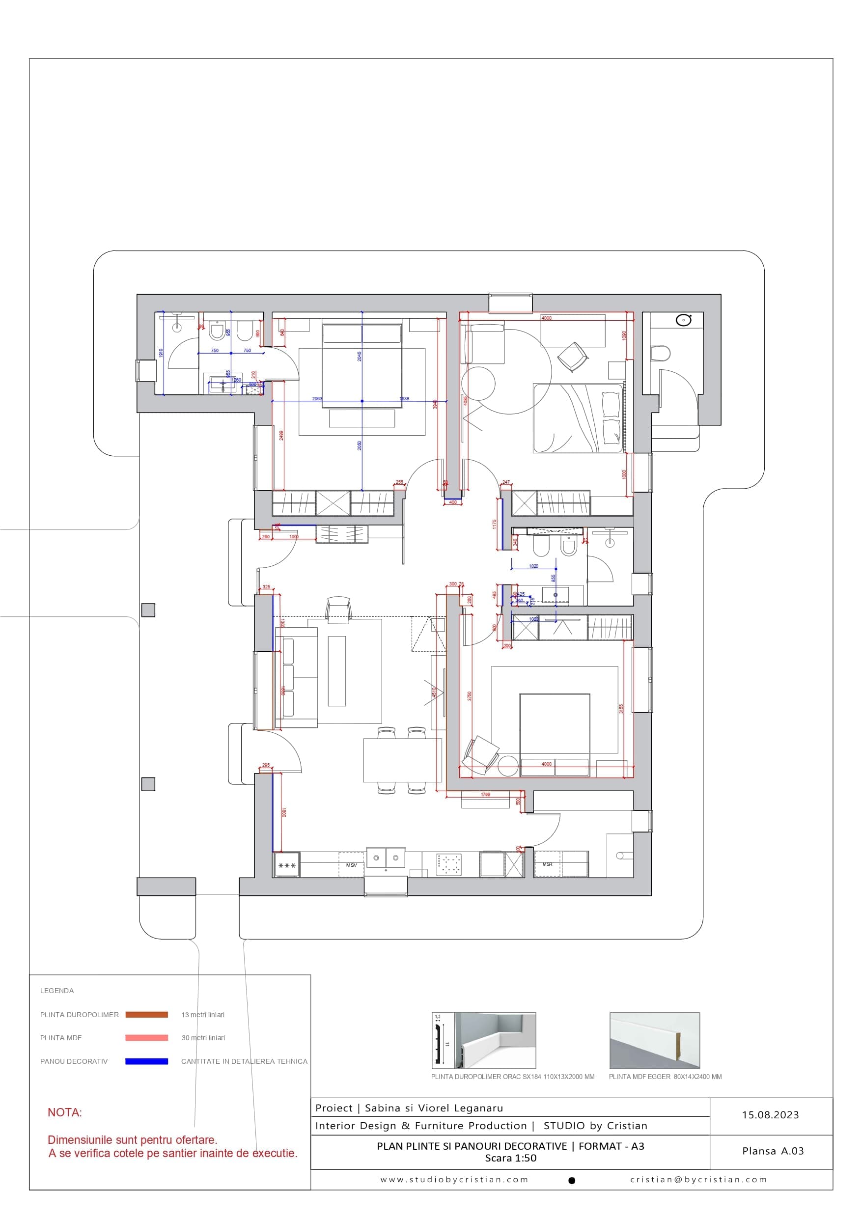
3. Plan Updates
We adapt the 3D concept to the house plan, synchronising every element. The plumbing, light fixtures and furniture are settled in a well-balanced composition.


4. Technical Drawings
The proposed custom furniture or décor items are being detailed in a technical sheet, ready for execution.


5. Purchase List & Price Offers
At the end of the interior design project, our clients receive all the information they need to create their dream spaces. Clients can also choose to address our implementation project offer, which is separate from the design phase.
Contact Us
We're passionate about bringing unique visions to life. Whether you have a clear concept or are just starting to dream, we'd love to hear from you. Reach out to discuss your project, and let's explore the possibilities together.
